Hledat Přihlásit se Poptávka CZ / EN / AR

1MJ6130-4CA

Výrobce: SIEMENS

Motor řady 1MJ6 (vlevo) a 1MA7 (vpravo)
1MJ6130-4CA
Třífázový asynchronní elektromotor s kotvou nakrátko v nevýbušném provedení EEx de IIC T4, v konfiguraci K53 v provedení EEx d IIC T4.
Určeno pro práci v prostředí s nebezpečím výbuchu hořlavých par a plynů dle EN50014 a EN50018, kategorie 2G, Zóna 1. Teplotní třída T1...

Více informací

Tento produkt v současné době nelze nabídnout. Zvolte si prosím jinou alternativu.
Vlastnosti výrobku
výkon (kW) 5,50
otáčky (ot/min) 1 450
počet pólů (pól) 4
kostra motoru cast iron
krytí IP55
velikost motoru 132S
třída izolace F
základní napětí (V) 400/690 D/Y 50Hz
jmenovitý vstupní proud (A) 11,1/6,43
kroutící moment (Nm) 36
hmotnost (kg) 76
ATEX certifikace II G EEx de IIC T1-T4
druh zatížení S1
ložiska DE/NDE 6308 C3 / 6308 C3
Polarita :: 4-pól (1500 ot/min) Účinnost :: IE1 (nízká účinnost) Ochrana proti výbuchu :: Zóna 1 (Ex de nebo Ex d) Režim provozu :: Síť / měnič Dodací termín EXW :: Termín a možnost dodávky na poptávku Provedení těla :: Litina Stav produktu :: Výroba ukončena - poptejte náhradu
Polarita Účinnost Ochrana Režim Termín Materiál Stav

Porovnat výrobek


Konfigurace

Dokumentace

Popis

Rozměry

Příslušenství

Varianty produktu (výběr povinný):

Napětí motoru

Tvar motoru

Konfigurace produktu (volitelné vlastnosti):

teplotní ochrany

ostatní napětí

domazávání ložisek

protokoly

národní certifikáty a normy

stupeň ochrany

poloha svorkovnice

pozice přívodů svorkovnice

hřídel

vyvážení rotoru

antikondenzační výhřev vinutí

vinutí a izolace, zvýšená okolní teplota

zvýšená vlhkost

stupeň Ex ochrany svorkovnice

jiný tvar motoru

Dokumentace

Dokumentace na vyžádání

Rozměry

Rozměry 1MJ613 IMB3 (patkový tvar)
Rozměry 1MJ613 IMB3 (patkový tvar)
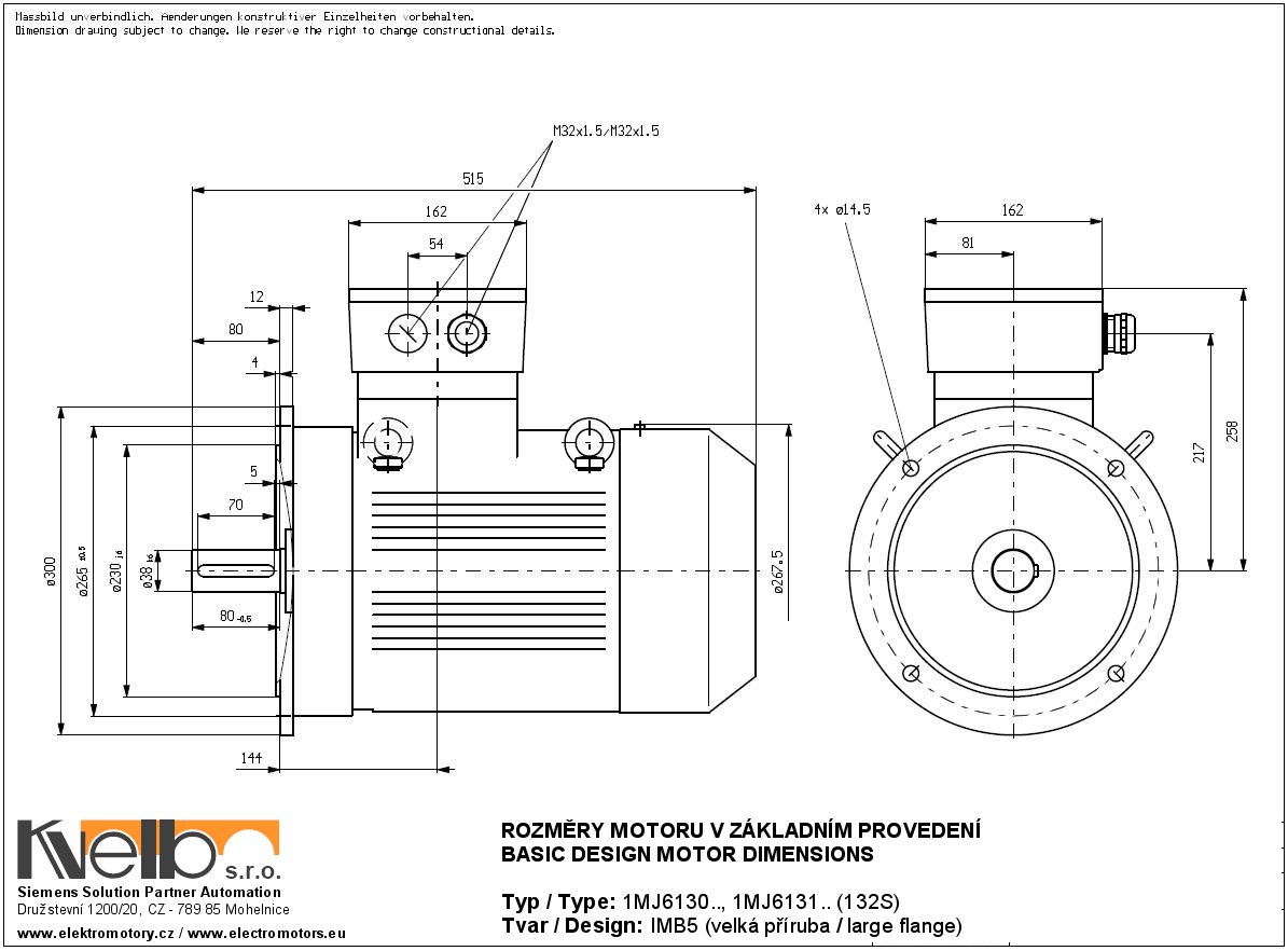
Rozměry 1MJ613 IMB5 (přírubový s velkou přírubou)
Rozměry 1MJ613 IMB5 (přírubový s velkou přírubou)

Popis

Třífázový asynchronní elektromotor s kotvou nakrátko v nevýbušném provedení EEx de IIC T4, v konfiguraci K53 v provedení EEx d IIC T4. Určeno pro práci v prostředí s nebezpečím výbuchu hořlavých par a plynů dle EN50014 a EN50018, kategorie 2G, Zóna 1. Teplotní třída T1 až T4.

Elektromotory řady 1MJ6 a 1MJ7 je možno provozovat ve spojení s frekvenčním měničem. povinnou výbavou je v takovém případě instalovaná teplotní ochrana elektromotoru A15 - 4xPTC termistor nebo A16 - 8xPTC termistor (4x pro signalizaci a 4x pro vypínání).

Pro nevýbušné motory je k dispozici pouze omezené množství konfigurací.

Produkt nemá přiřazeno žádné příslušenství

Tento produkt v současné době nelze nabídnout. Zvolte si prosím jinou alternativu.