Hledat Přihlásit se Poptávka CZ / EN / AR

Elektromotor Simotics SD - litina
1LG4206-6AA

Výrobce: SIEMENS

Motory řad 1LA../1LG..
1LG4206-6AA
Třífázový asynchronní elektromotor s kotvou nakrátko se standardní účinností IE1. Základní řada pro použití ve všech typech standardních pohonů (ventilátory, čerpadla, dopravníky, obráběcí stroje atd.). Vhodné též pro řízení frekvenčním měničem.
V základním...

Více informací

přejít na konfiguraci
Doba dodání: na poptávku Záruční doba: 12 měsíců
Vlastnosti výrobku
výkon (kW) 18,50
otáčky (ot/min) 975
účinnost EFF2
počet pólů (pól) 6
kostra motoru litina/cast iron
krytí IP55
velikost motoru 200L
třída izolace F
základní napětí (V) 400/690V D/Y 50Hz,460V D 60Hz
jmenovitý vstupní proud (A) 36,5/21,16
kroutící moment (Nm) 181
hmotnost (kg) 195
druh zatížení S1
ložiska DE/NDE 6212 ZC3 / 6212 ZC3
Polarita :: 6-pól (1000 ot/min) Účinnost :: IE1 (nízká účinnost) Ochrana proti výbuchu :: Bez ochrany - jen pro bezpečnou zónu Ochrana proti výbuchu :: Zóna 2 možná Ochrana proti výbuchu :: Zóna 21 možná Ochrana proti výbuchu :: Zóna 22 možná Režim provozu :: Síť / měnič Dodací termín EXW :: cca. 4 – 5 týdnů Provedení těla :: Litina Stav produktu :: Doprodej
Polarita Účinnost Ochrana Režim Termín Materiál Stav

Porovnat výrobek


Konfigurace

Dokumentace

Popis

Rozměry

Příslušenství

Varianty produktu (výběr povinný):

Napětí motoru

Tvar motoru

Konfigurace produktu (volitelné vlastnosti):

IE1 motory s výjimkou ze směrnice EU 2009/125/ES

volba povinná - více viz sekce podpora

teplotní ochrany

modulární nástavby

napájení brzdy

(k dispozici jen v kombinaci s opcí G26 nebo F01)

ruční odbrždění

(k dispozici jen v kombinaci s opcí G26 nebo F01)

jiná IRC rotační čidla

ostatní napětí

ložiska

zajištěná ložiska

domazávání ložisek

protokoly

národní certifikáty a normy

stupeň ochrany

poloha svorkovnice

pozice přívodů svorkovnice

hřídel

vyvážení rotoru

antikondenzační výhřev vinutí

vinutí a izolace, zvýšená okolní teplota

snížená okolní teplota

zvýšená vlhkost

provedení pro Zónu 2, 21 nebo 22

(Nelze kombinovat s moduálrními nástavbami)

jiný tvar motoru

Dokumentace

Dokumentace na vyžádání

Rozměry

Rozměry 1LG4206-2,6 IMB3 (patkový tvar)
Rozměry 1LG4206-2,6 IMB3 (patkový tvar)
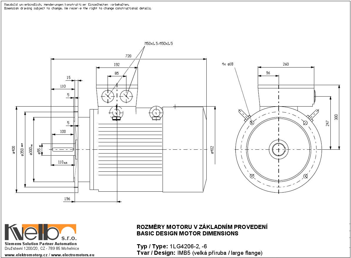
Rozměry 1LG4206-2,6 IMB5 (přírubový s velkou přírubou)
Rozměry 1LG4206-2,6 IMB5 (přírubový s velkou přírubou)

Popis

Třífázový asynchronní elektromotor s kotvou nakrátko se standardní účinností IE1. Základní řada pro použití ve všech typech standardních pohonů (ventilátory, čerpadla, dopravníky, obráběcí stroje atd.). Vhodné též pro řízení frekvenčním měničem.

V základním provedení pro teplotu okolí -20 až +40°C, nadmořskou výšku do 1000 mnm, bez teplotní ochrany, vlastní chlazení IC411, pro trvalé zatížení S1

Produkt nemá přiřazeno žádné příslušenství

K-Drives se v rámci svého 30-ti letého rozvoje vyprofiloval především jako významný, globálně orientovaný B2B dodavatel, specializovaný na perfektní řešení velkoobjemových a dlouhodobých zakázek.
Abychom si uvolnili kapacity pro to, co děláme nejlépe, opouštíme sféru maloobchodního a B2C prodeje.

Tisícům našich maloodběratelů, kteří u nás nakupovali v průběhu naší dlouhé historie, děkujeme za jejich důvěru a podporu.Projektovým a větším B2B zákazníkům z celého světa budeme díky tomuto kroku přinášet ještě lepší péči v technické i obchodní sféře, nejmodernější metody komunikace a výměny dat a individuálnější přístup.

Náš oblíbený konfigurátor zůstává v provozu, ale webshop se mění na platformu pro zadávání poptávek (není již možno přímo online nakupovat).

Děkujeme za pochopení.