Hledat Přihlásit se Poptávka CZ / EN / AR

Elektromotor Simotics XP nevýbušný
1MA7063-4BB

Výrobce: SIEMENS

Motor řady 1MJ6 (vlevo) a 1MA7 (vpravo)
1MA7063-4BB
Třífázový asynchronní elektromotor s kotvou nakrátko v zajištěném provedení EEx e IIC T1-T2 nebo T3.
Určeno pro práci v prostředí s nebezpečím výbuchu hořlavých par a plynů dle EN50014 a EN50019, kategorie 2G, Zóna 1. Teplotní třída T1 až T3.
Elektromotory řady...

Více informací

přejít na konfiguraci
výroba ukončena
Vlastnosti výrobku
výkon (kW) 0,18
otáčky (ot/min) 1 330
účinnost NA
počet pólů (pól) 4
kostra motoru Aluminium
krytí IP55
velikost motoru 63M
třída izolace F
základní napětí (V) 400Y/230D 50Hz
jmenovitý vstupní proud (A) 1,08/0,63
kroutící moment (Nm) 1,30
hmotnost (kg) 4,50
ATEX certifikace EEx e IIC T1-T3
druh zatížení S1
ložiska DE/NDE 6201 2ZC3/6201 2ZC3
Polarita :: 4-pól (1500 ot/min) Účinnost :: IE1 (nízká účinnost) Ochrana proti výbuchu :: Zóna 1 (Ex e) Režim provozu :: Pouze na přímo na síti (DOL) Dodací termín EXW :: cca. 4 – 5 týdnů Provedení těla :: Hliník Stav produktu :: Výroba ukončena - poptejte náhradu
Polarita Účinnost Ochrana Režim Termín Materiál Stav

Porovnat výrobek


Konfigurace

Dokumentace

Popis

Rozměry

Příslušenství

Varianty produktu (výběr povinný):

Napětí motoru

Tvar motoru

Konfigurace produktu (volitelné vlastnosti):

teplotní ochrany

ostatní napětí

zajištěná ložiska

protokoly

národní certifikáty a normy

stupeň ochrany

pozice přívodů svorkovnice

hřídel

vyvážení rotoru

vinutí a izolace, zvýšená okolní teplota

zvýšená vlhkost

jiný tvar motoru

Dokumentace

Kompletní katalog: PDF 1MA7 katalog (CZ)

Rozměry

Rozměry 1MA706 IMB3 (patkový tvar)
Rozměry 1MA706 IMB3 (patkový tvar)
Rozměry 1MA706 IMB5 (přírubový s velkou přírubou)
Rozměry 1MA706 IMB5 (přírubový s velkou přírubou)
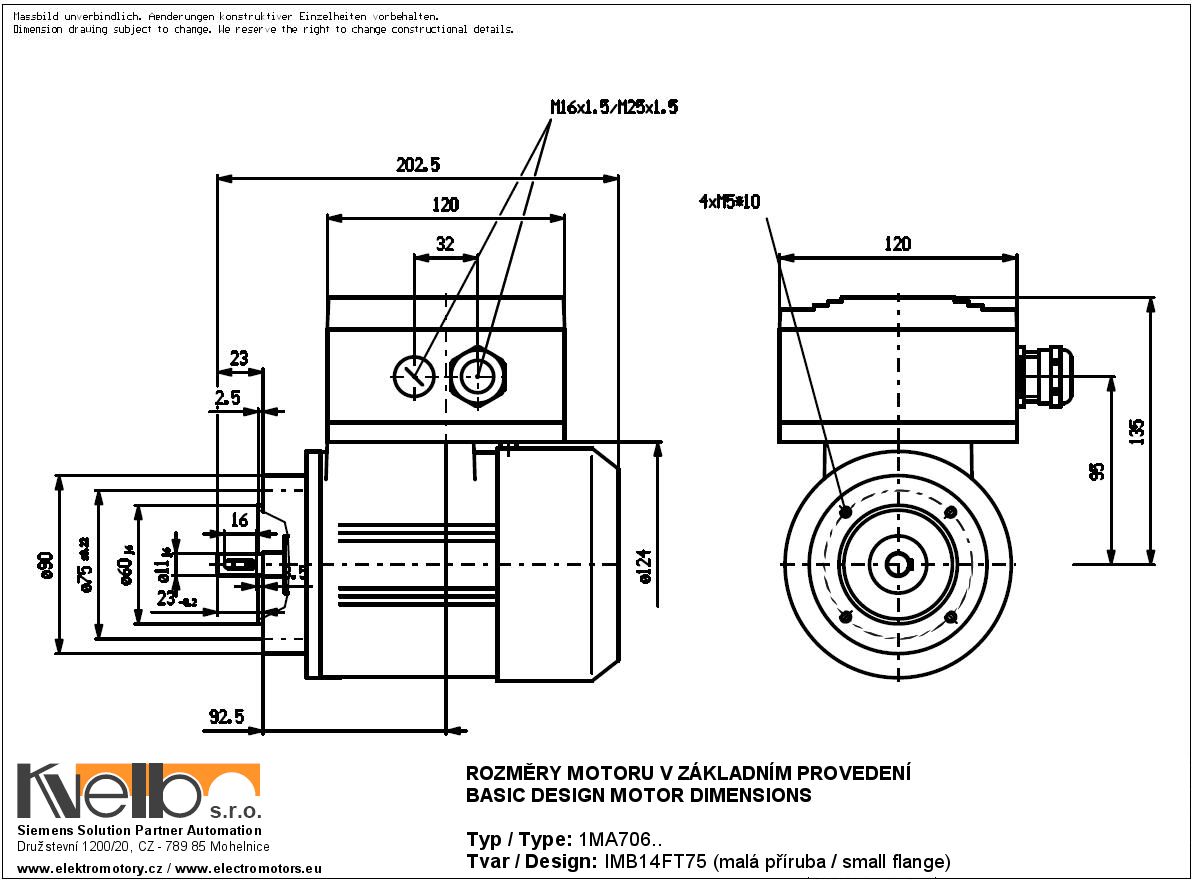
Rozměry 1MA706 IMB14FT (přírubový s malou přírubou)
Rozměry 1MA706 IMB14FT (přírubový s malou přírubou)
Rozměry 1MA706 IMB14FT (přírubový se střední přírubou)
Rozměry 1MA706 IMB14FT (přírubový se střední přírubou)

Popis

Třífázový asynchronní elektromotor s kotvou nakrátko v zajištěném provedení EEx e IIC T1-T2 nebo T3. Určeno pro práci v prostředí s nebezpečím výbuchu hořlavých par a plynů dle EN50014 a EN50019, kategorie 2G, Zóna 1. Teplotní třída T1 až T3.

Elektromotory řady 1MA7 a 1MA6 není možno provozovat ve spojení s frekvenčním měničem.

Pro zajištěné motory je k dispozici pouze omezené množství konfigurací.

Produkt nemá přiřazeno žádné příslušenství

K-Drives se v rámci svého 30-ti letého rozvoje vyprofiloval především jako významný, globálně orientovaný B2B dodavatel, specializovaný na perfektní řešení velkoobjemových a dlouhodobých zakázek.
Abychom si uvolnili kapacity pro to, co děláme nejlépe, opouštíme sféru maloobchodního a B2C prodeje.

Tisícům našich maloodběratelů, kteří u nás nakupovali v průběhu naší dlouhé historie, děkujeme za jejich důvěru a podporu.Projektovým a větším B2B zákazníkům z celého světa budeme díky tomuto kroku přinášet ještě lepší péči v technické i obchodní sféře, nejmodernější metody komunikace a výměny dat a individuálnější přístup.

Náš oblíbený konfigurátor zůstává v provozu, ale webshop se mění na platformu pro zadávání poptávek (není již možno přímo online nakupovat).

Děkujeme za pochopení.