Hledat Přihlásit se Poptávka CZ / EN / AR

Elektromotor Simotics SD - litina
1LG4258-4AA

Výrobce: SIEMENS

Motory řad 1LA../1LG..
1LG4258-4AA
Třífázový asynchronní elektromotor s kotvou nakrátko, se zvýšeným výkonem. Elektromotory se zvýšeným výkonem se používají v případě potřeby docílení co nejvyššího výkonu při zachování co nejmenší velikosti motoru. Oproti motorům základní řady 1LA7 nebo 1LG4 mají tedy...

Více informací

přejít na konfiguraci
Doba dodání: na poptávku Záruční doba: 12 měsíců
Vlastnosti výrobku
výkon (kW) 75
otáčky (ot/min) 1 482
účinnost NA
počet pólů (pól) 4
kostra motoru cast iron
krytí IP55
velikost motoru 250M
třída izolace F
základní napětí (V) 400/690 D/Y 50Hz, 460V D 60Hz
jmenovitý vstupní proud (A) 136,0/78,84
kroutící moment (Nm) 483,30
hmotnost (kg) 460
druh zatížení S1
ložiska DE/NDE 6215 ZC3/6215 ZC3
Polarita :: 4-pól (1500 ot/min) Účinnost :: IE1 (nízká účinnost) Ochrana proti výbuchu :: Bez ochrany - jen pro bezpečnou zónu Ochrana proti výbuchu :: Zóna 2 možná Ochrana proti výbuchu :: Zóna 21 možná Ochrana proti výbuchu :: Zóna 22 možná Režim provozu :: Síť / měnič Dodací termín EXW :: cca. 4 – 5 týdnů Provedení těla :: Litina Stav produktu :: Doprodej
Polarita Účinnost Ochrana Režim Termín Materiál Stav

Porovnat výrobek


Konfigurace

Dokumentace

Popis

Rozměry

Příslušenství

Varianty produktu (výběr povinný):

Napětí motoru

Tvar motoru

Konfigurace produktu (volitelné vlastnosti):

IE1 motory s výjimkou ze směrnice EU 2009/125/ES

volba povinná - více viz sekce podpora

teplotní ochrany

modulární nástavby

napájení brzdy

(k dispozici jen v kombinaci s opcí G26 nebo F01)

ruční odbrždění

(k dispozici jen v kombinaci s opcí G26 nebo F01)

jiná IRC rotační čidla

ostatní napětí

ložiska

zajištěná ložiska

izolované ložisko

(pro motory velikosti 280 a výše provoz s měničem povinné)

domazávání ložisek

protokoly

národní certifikáty a normy

stupeň ochrany

poloha svorkovnice

pozice přívodů svorkovnice

hřídel

vyvážení rotoru

antikondenzační výhřev vinutí

vinutí a izolace, zvýšená okolní teplota

snížená okolní teplota

zvýšená vlhkost

provedení pro Zónu 2, 21 nebo 22

(Nelze kombinovat s moduálrními nástavbami)

jiný tvar motoru

Dokumentace

Dokumentace na vyžádání

Rozměry

Rozměry 1LG4258-4 IMB3 (patkový tvar)
Rozměry 1LG4258-4 IMB3 (patkový tvar)
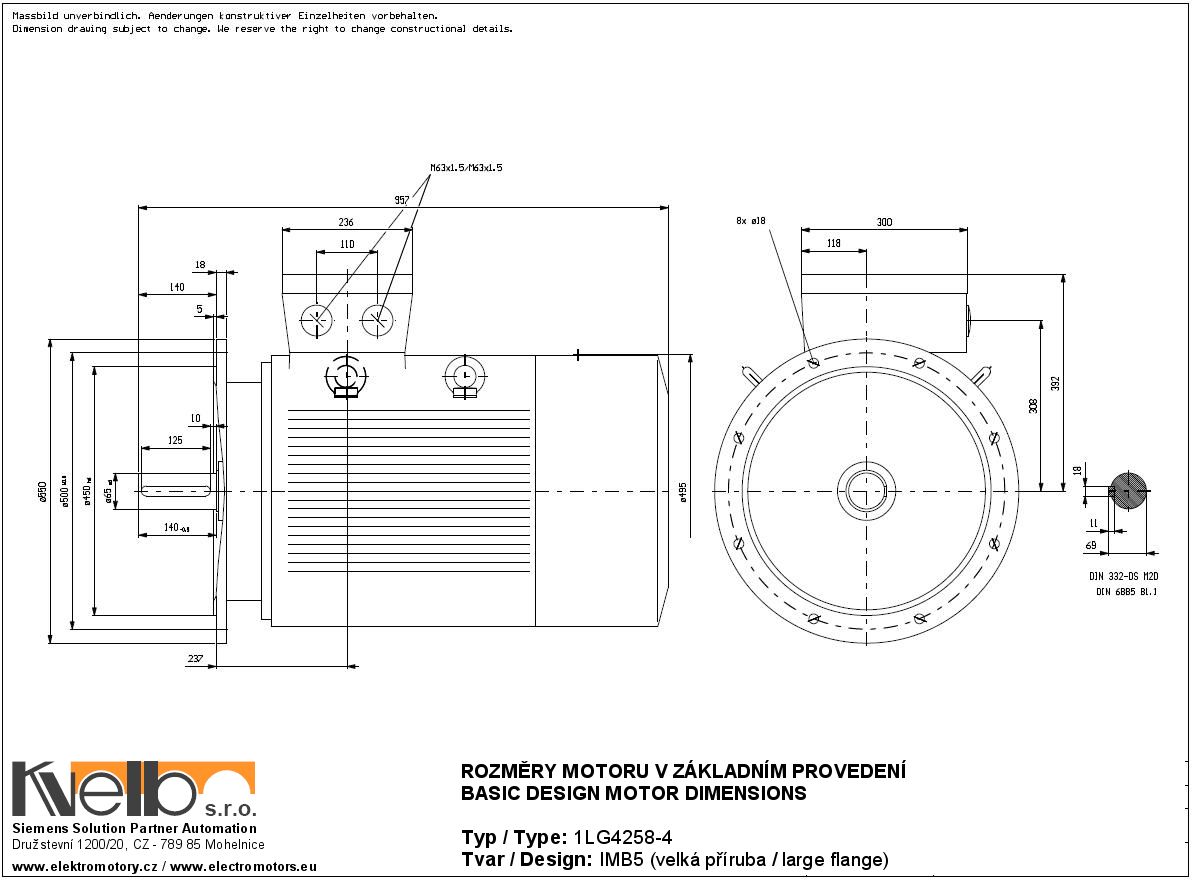
Rozměry1LG4258-4_ IMB5 (přírubový s velkou přírubou)
Rozměry1LG4258-4_ IMB5 (přírubový s velkou přírubou)

Popis

Třífázový asynchronní elektromotor s kotvou nakrátko, se zvýšeným výkonem.

Elektromotory se zvýšeným výkonem se používají v případě potřeby docílení co nejvyššího výkonu při zachování co nejmenší velikosti motoru. Oproti motorům základní řady 1LA7 nebo 1LG4 mají tedy vždy vyšší výkon při stejné osové výšce motoru, mohou být ovšem celkově delší (což neovlivňuje připojovací rozměry hřídele, patek a přírub). Pokud toto není Váš případ, doporučujeme použití motoru základní řady.

Motory řady 1LA9 se obecně pro použití s měniči nedoporučují.

Produkt nemá přiřazeno žádné příslušenství

K-Drives se v rámci svého 30-ti letého rozvoje vyprofiloval především jako významný, globálně orientovaný B2B dodavatel, specializovaný na perfektní řešení velkoobjemových a dlouhodobých zakázek.
Abychom si uvolnili kapacity pro to, co děláme nejlépe, opouštíme sféru maloobchodního a B2C prodeje.

Tisícům našich maloodběratelů, kteří u nás nakupovali v průběhu naší dlouhé historie, děkujeme za jejich důvěru a podporu.Projektovým a větším B2B zákazníkům z celého světa budeme díky tomuto kroku přinášet ještě lepší péči v technické i obchodní sféře, nejmodernější metody komunikace a výměny dat a individuálnější přístup.

Náš oblíbený konfigurátor zůstává v provozu, ale webshop se mění na platformu pro zadávání poptávek (není již možno přímo online nakupovat).

Děkujeme za pochopení.